NAPA IV

Plan de devant
Étage principal
Plan d’étage du deuxième niveau – 5 chambres
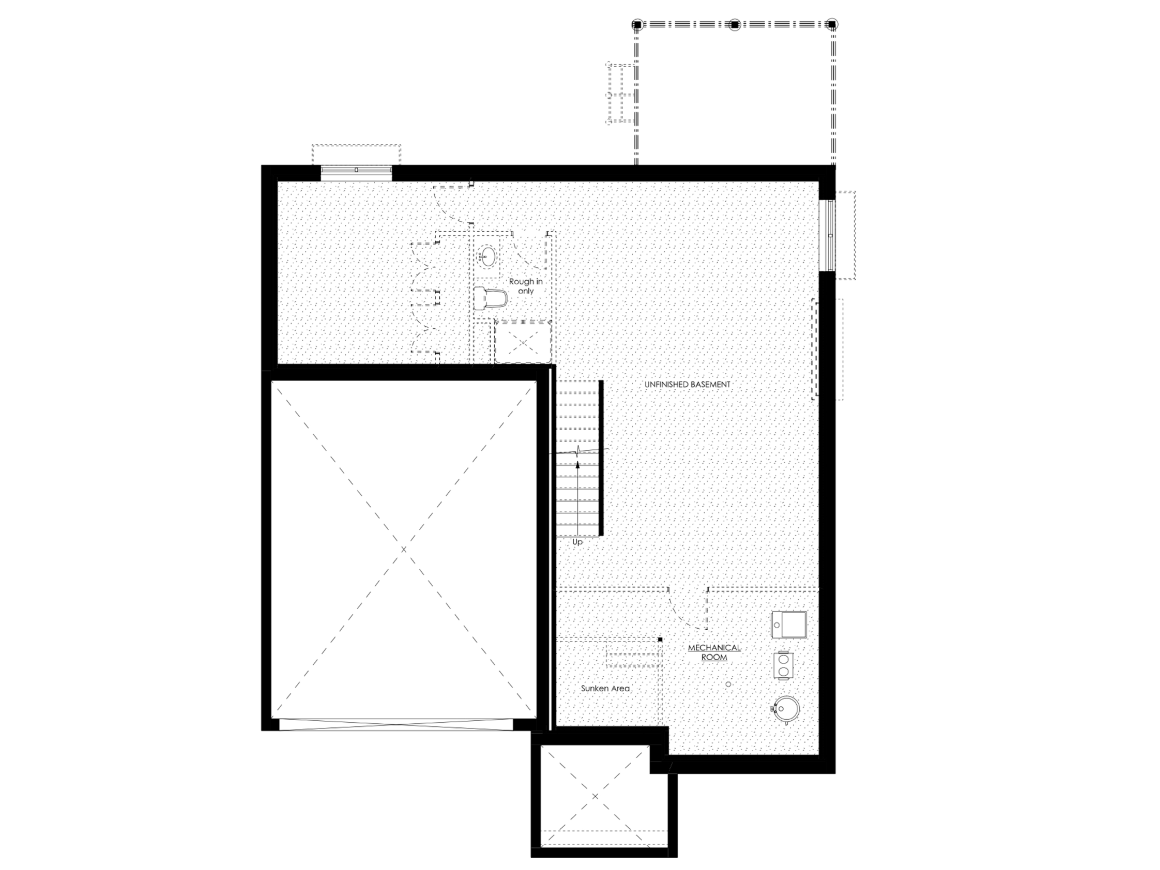
Plan du sous-sol

Aperçu du projet

Les modèles Napa mettent en valeur deux interprétations architecturales à l’intérieur d’une même empreinte harmonieuse.

La version farmhouse marie le classique et le contemporain grâce à ses toits à pignons prononcés, son revêtement en planches et lattes, ses accents de brique et son entrée à pignon qui lui confèrent une allure chaleureuse et traditionnelle.

À l’inverse, la version moderne mise sur des lignes horizontales épurées, un revêtement lisse, de grandes fenêtres et des détails en pierre, créant une façade géométrique et soignée au style urbain raffiné.

Le prix de départ est basé sur un lot régulier; il peut varier selon l’emplacement sur un lot privilégié. Toutes les spécifications standard de construction sont incluses dans le prix de base. 

► Le prix de départ tiennent compte du nouveau remboursement de la HST, en vigueur à compter du 1er avril 2026. Sous réserve d'éligibilité de l'acheteur.

Spécifications de construction standard

Finitions extérieures
  • Pierre à l’avant, selon le plan

  • Revêtement en vinyle (côtés et arrière)

  • Revêtement avant en fibrociment LP

  • Gouttières

  • Fenêtres noires à la façade

  • Fenêtres blanches (côtés, arrière et sous-sol)

  • Porte de garage Garaga Urbaine R16 noire (sans insert de vitre)

  • Terrasse arrière de 3' x 7' adjacente à la porte-patio

  • Bardeaux BP Mystique avec garantie à vie limitée

  • Allée asphaltée (dans les 18 mois suivant la possession)

  • Gazon à l’avant et à l’arrière (dans les 18 mois suivant la possession)

  • Un arbre à l’avant (dans les 18 mois suivant la possession)


Finitions du garage
  • Dalle de béton polie

  • Isolation complète

  • Gypse avec première couche de ruban à joints


Plomberie
  • Bain à remous en acrylique et douche monopièce avec tringle à rideau (salle de bain attenante)

  • Bain/douche monopièce en acrylique (salle de bain principale)

  • Toilettes hauteur confort

  • Robinetterie chromée dans la cuisine et les salles de bain

  • Lavabo sur pied dans la salle d’eau


Électricité
  • Panneau électrique de 100 ampères

  • Prises, interrupteurs et luminaires standards selon le code du bâtiment

  • Luminaires fournis par San Remo (qualité entrepreneur)


CVC
  • Fournaise à haut rendement à un seul étage

  • Chauffe-eau sans réservoir (location)

  • VRC (ventilation à récupération de chaleur)


Sous-sol
  • Hauteur sous plafond de 7' 10"

  • Isolation murale avec couverture isolante


Finitions intérieures
  • Plafond de 9 pi au rez-de-chaussée

  • Plafond de 8 pi à l’étage

  • Armoires de cuisine (selon le plan) avec portes style shaker en PVC, finies jusqu’au plafond, comptoirs laminés et évier encastré

  • Armoires de salle de bain (selon le plan; sauf salle d’eau) avec portes style shaker en PVC, comptoirs laminés et lavabo de comptoir

  • Moulures droites de 2 ½ po et plinthes droites de 4 po

  • Plancher en vinyle ou tuiles Twelve Oaks à l’entrée, cuisine, salle à manger, salon, salles de bain et buanderie

  • Tapis dans les chambres et le couloir de l’étage

  • Escalier en chêne teinté pour s’agencer au plancher en vinyle (du rez-de-chaussée à l’étage)

  • Rampe en chêne avec barreaux métalliques (du rez-de-chaussée à l’étage)

  • Escalier en contreplaqué avec tapis et main courante en bois franc (du rez-de-chaussée au sous-sol)

  • Une tablette et une tringle dans tous les garde-robes (sauf garde-manger de la cuisine)

Options de mise à niveau

Améliorations – Foyer
  • Foyer au gaz Continental 36" double face avec contour en carreaux de 6" et gypse
  • Manteau de foyer du même matériau et de la même couleur que les armoires de cuisine, poutre droite de 6" x 8" x 4'
  • Pierre du plancher au plafond

 

Améliorations – Cuisine de luxe
  • Dosseret (carreaux de type métro seulement)
  • Comptoir en quartz
  • Évier sous plan
  • Plancher en céramique (cuisine et garde-manger)

 

Améliorations – Salle d’eau
  • Vanité avec comptoir en stratifié et lavabo posé sur le comptoir
  • Comptoir en quartz
  • Évier sous plan
  • Plancher en céramique

 

Améliorations – Salle de bain attenante (Ensuite)
  • Base de douche en acrylique avec mur de céramique et tablette (4' x 5" pour les modèles Napa I et II, 4' x 3" pour les modèles Napa III et IV)
  • Porte de douche en verre
  • Comptoir en quartz
  • Évier sous plan
  • Plancher en céramique

 

Améliorations – Salle de bain principale
  • Bain/douche en acrylique avec mur de céramique
  • Comptoir en quartz
  • Évier sous plan
  • Plancher en céramique

 

Améliorations – Buanderie
  • Armoires murales
  • Plancher en céramique

 

Améliorations supplémentaires
  • Plancher en céramique dans le vestiaire
  • Plancher en vinyle à l’étage (chambres et couloir)
  • Plancher en bois franc au rez-de-chaussée (bureau, salon, salle à manger)
  • Plancher en bois franc à l’étage (chambres et couloir)
  • Robinet de cuisine noir
  • Encastrés - Pot lights (par lumière)
  • Panneau électrique de 200 ampères
  • Climatiseur
  • Terrasse non couverte 10' x 14'
  • Terrasse couverte 10' x 14'
  • Conduites de gaz (par connexion) :
    • Barbecue

    • Sécheuse

    • Cuisinière

    • Autre

  • Chauffe-eau sans réservoir (achat)

  • Conduite d’eau pour réfrigérateur

  • Prise pour borne de recharge (garage)

  • Forfait ouvre-porte de garage (inclut 1 ouvre-porte et 2 télécommandes)

  • Préparation pour salle de bain au sous-sol (branchement pour 3 pièces)

  • Salle de bain de sous-sol aménagée comprenant une vanité blanche en mélamine de 40" avec portes (sans tiroirs), une toilette, une douche en acrylique monopièce de 36" avec tringle à rideau et un plancher en vinyle

  • Sous-sol fini comprenant une salle familiale, une chambre, six encastrés, un plancher en vinyle et un escalier recouvert de tapis

Offre combinée

Profitez de nos forfaits pour économiser encore plus sur votre maison!

Forfait Foyer
  • Comprend un foyer Continental au gaz, un manteau de foyer et un parement de pierre du plancher au plafond

Forfait Cuisine de luxe
  • Comprend un comptoir en quartz, un évier sous plan, un dosseret et un plancher en céramique

Forfait Salle de bain attenante
  • Comprend une base de douche en acrylique avec mur de céramique, une porte de douche en verre, un comptoir en quartz, un évier sous plan et un plancher en céramique

Forfait Salle de bain principale
  • Comprend un bain/douche en acrylique avec mur de céramique, un comptoir en quartz, un évier sous plan et un plancher en céramique

Coordonnées

Pour plus d’information ou pour planifier une visite, prière de nous contacter :
Téléphone : 613-913-7634
Courriel : philippe@gerenoconstruction.com 

Options de financement

Nous proposons des options de financement compétitives adaptées à vos besoins. Contactez-nous pour en savoir plus sur les termes et conditions.

Aperçu du projet

  • Prix de départ: 658,407 $
  • Dimensions du rez de chaussé: 1160 pi2
  • Dimensions à l’étage: 1321 pi2
  • Taille du garage: 18'9" x 23'6"
  • Superficie totale en pieds carrés: 2481 pi2
  • Salles de bains: 2 + 1 salle d'eau
  • Chambres: 5
  • Caractéristiques supplémentaires: Espace bureau et cuisine haut gamme (gourmet)

Aperçu du projet

  • Dimensions du rez de chaussé: 1160 pi2
  • Dimensions à l’étage: 1321 pi2
  • Taille du garage: 18'9" x 23'6"
  • Superficie totale en pieds carrés: 2481 pi2
  • Salles de bains: 2 + 1 salle d'eau
  • Chambres: 5

Infolettre

Inscrivez-vous dès maintenant pour recevoir les dernières mises à jour sur les nouvelles maisons, les projets à venir, les offres spéciales et plus encore !

En soumettant votre courriel, vous donnez votre consentement explicite pour recevoir des communications de G&E Construction. Vous pouvez vous désabonner à tout moment.