PIEDMONT I

Plan du devant
Étage principal - 3 chambres
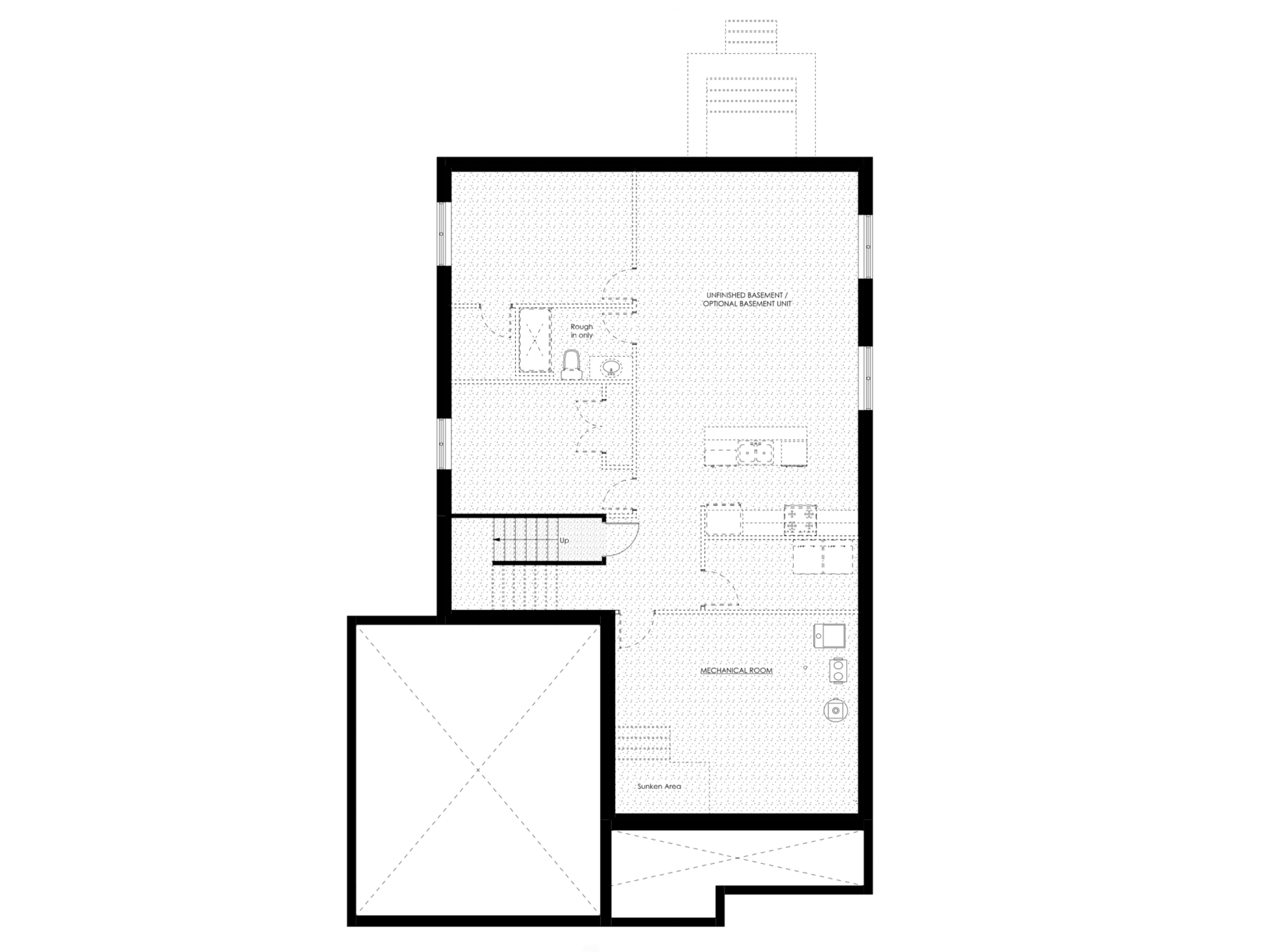
Plan du sous-sol

Aperçu du projet

Les modèles de plain-pied Piedmont offrent des interprétations distinctes du charme rustique et de la sophistication contemporaine. Le style farmhouse présente un toit à pignon prononcé, un revêtement à planches et lattes et une base en brique, offrant une esthétique campagnarde chaleureuse et classique. Le style moderne se distingue par un toit plat, un revêtement horizontal lisse, un travail de brique aux lignes épurées et un accent de bois naturel, lui conférant une allure urbaine et raffinée tout en conservant la chaleur grâce aux matériaux naturels. Les deux maisons sont de plain-pied, disposent d’un garage double orienté vers l’avant et d’un porche couvert, ce qui les rend idéales pour une vie de banlieue accessible et élégante.

Le prix de départ est basé sur un lot régulier; il peut varier selon l’emplacement sur un lot privilégié. Toutes les spécifications standard de construction sont incluses dans le prix de base. 

► Le prix de départ tiennent compte du nouveau remboursement de la HST, en vigueur à compter du 1er avril 2026. Sous réserve d'éligibilité de l'acheteur.

Spécifications de construction standard

Finitions extérieures
  • Pierre à l’avant, selon le plan

  • Revêtement en vinyle (côtés et arrière)

  • Revêtement avant en fibrociment LP

  • Gouttières

  • Fenêtres noires à la façade

  • Fenêtres blanches (côtés, arrière et sous-sol)

  • Porte de garage Garaga Urbaine R16 noire (sans insert de vitre)

  • Terrasse de 3' x 7' adjacente à la porte-patio arrière

  • Bardeaux BP Mystique avec garantie à vie limitée

  • Allée asphaltée (dans les 18 mois suivant la possession)

  • Gazon à l’avant et à l’arrière (dans les 18 mois suivant la possession)

  • Un arbre à l’avant (dans les 18 mois suivant la possession)


Finitions du garage
  • Dalle de béton polie

  • Isolation complète

  • Gypse avec première couche de ruban à joints


Plomberie
  • Bain/douche monopièce en acrylique (salle de bain principale)

  • Douche monopièce en acrylique avec tringle à rideau (salle de bain attenante)

  • Toilettes hauteur confort
  • Robinetterie chromée dans la cuisine et les salles de bain


Électricité
  • Panneau électrique de 100 ampères

  • Prises, interrupteurs et luminaires standards selon le code du bâtiment

  • Luminaires fournis par San Remo (qualité entrepreneur)


CVC
  • Fournaise à haut rendement à un seul étage

  • Chauffe-eau sans réservoir (location)

  • VRC (ventilation à récupération de chaleur)


Sous-sol
  • Hauteur sous plafond de 7' 10"

  • Isolation murale avec couverture isolante


Finitions intérieures
  • Plafond de 8 pi partout

  • Armoires de cuisine (selon le plan) avec portes style shaker en PVC, finies jusqu’au plafond, comptoirs laminés et évier encastré

  • Armoires de salle de bain (selon le plan; sauf salle d’eau) avec portes style shaker en PVC, comptoirs laminés et lavabo de comptoir

  • Moulures droites de 2 ½" et plinthes droites de 4"

  • Plancher en vinyle ou tuiles Twelve Oaks à l’entrée, cuisine, entrée du garage, salle à manger, salon, salles de bain et buanderie et corridor

  • Revêtement de tapis dans les chambres

  • Escalier en bois franc de chêne agencé au revêtement de vinyle (du rez-de-chaussée au sous-sol)

  • Rampe en chêne avec barreaux métalliques sur l’escalier (du rez-de-chaussée au sous-sol)

  • Une tablette et une tringle dans tous les garde-robes sauf garde-manger

Options de mise à niveau

Améliorations – Foyer
  • Foyer au gaz Continental 36" avec contour en carreaux de 6" et gypse
  • Manteau de foyer du même matériau et de la même couleur que les armoires de cuisine, poutre droite de 6" x 8" x 4'
  • Pierre du plancher au plafond

 

Améliorations – Cuisine de luxe
  • Dosseret (carreaux de type métro seulement)
  • Comptoir en quartz
  • Évier sous plan
  • Plancher en céramique (cuisine et garde-manger)

 

Améliorations – Salle de bain attenante (Ensuite)
  • Base de douche en acrylique avec mur de céramique et tablette de 4' x 5"
  • Porte de douche en verre
  • Comptoir en quartz
  • Évier sous plan
  • Plancher en céramique
 
Améliorations – Salle de bain principale
  • Bain-douche monopièce en acrylique avec mur de céramique
  • Comptoir en quartz
  • Évier sous plan
  • Plancher en céramique

 

Améliorations – Buanderie
  • Armoires murales

 

Améliorations supplémentaires
  • Plafond de 9 pieds partout
  • Plancher en céramique dans l'entrée
  • Plancher en vinyle dans les chambres
  • Plancher en bois franc dans le salon, la salle à manger, les chambres et le couloir
  • Robinet de cuisine noir
  • Encastrés - Pot lights (par lumière)
  • Panneau électrique de 200 ampères
  • Climatiseur
  • Uncovered Deck 8' x 10'
  • Covered Deck 8' x 10'

  • Conduites de gaz (par connexion) :
    • Barbecue

    • Sécheuse

    • Cuisinière

    • Autre

  • Chauffe-eau sans réservoir (achat)

  • Conduite d’eau pour réfrigérateur

  • Prise pour borne de recharge (garage)

  • Forfait ouvre-porte de garage (inclut 1 ouvre-porte et 2 télécommandes)

  • Préparation pour salle de bain au sous-sol (branchement pour 3 pièces)

  • Salle de bain de sous-sol aménagée comprenant une vanité blanche en mélamine de 40" avec portes (sans tiroirs), une toilette, une douche en acrylique monopièce de 36" avec tringle à rideau et un plancher en vinyle

  • Sous-sol fini comprenant une salle familiale, 6 encastrés, un plancher en vinyle et un escalier en bois franc

 

Suite Piedmont pour beaux-parents

Notre modèle Piedmont est le seul à offrir l’option d’une suite pour beaux-parents au sous-sol. Cette suite privée comprend une entrée latérale indépendante, une séparation complète contre le feu avec le rez-de-chaussée et un système CVC dédié pour le confort et la sécurité. À l’intérieur, vous trouverez deux chambres spacieuses, une salle de bain 3 pièces, une buanderie pratique dans la suite et un grand espace de vie avec de grandes fenêtres de type sortie de secours apportant beaucoup de lumière naturelle. Des planchers en vinyle durable (planches et carreaux) parcourent toute la suite, alliant style moderne et entretien facile. Cet espace est parfait pour la famille élargie, la vie intergénérationnelle ou un potentiel de revenu locatif.

Sous-sol entièrement aménagé avec appartement légal / suite pour beaux-parents avec entrée latérale indépendante, système CVC dédié et séparation contre le feu.
Comprend 1 salle de loisirs, 2 chambres, 1 salle de bain 3 pièces, 6 luminaires encastrés, plancher en vinyle et escaliers en bois franc.
Superficie : 1572 pi²

Contactez-nous pour plus de détails.

Offre combinée

Profitez de nos forfaits pour économiser encore plus sur votre maison!

Forfait Foyer
  • Comprend un foyer Continental au gaz, un manteau de foyer et un parement de pierre du plancher au plafond

Forfait Cuisine de luxe
  • Comprend un comptoir en quartz, un évier sous plan, un dosseret et un plancher en céramique

Forfait Salle de bain attenante
  • Comprend une base de douche en acrylique avec mur de céramique, une porte de douche en verre, un comptoir en quartz, un évier sous plan et un plancher en céramique

Forfait Salle de bain principale
  • Comprend un bain/douche en acrylique avec mur de céramique, un comptoir en quartz, un évier sous plan et un plancher en céramique

Coordonnées

Pour plus d’information ou pour planifier une visite, prière de nous contacter :
Téléphone : 613-913-7634
Courriel : philippe@gerenoconstruction.com 

Options de financement

Nous proposons des options de financement compétitives adaptées à vos besoins. Contactez-nous pour en savoir plus sur les termes et conditions.

Aperçu du projet

  • Prix de départ: 594,690 $
  • Taille du garage: 19'3" x 22'8"
  • Superficie totale en pieds carrés: 1572 pi2
  • Salles de bains: 2
  • Chambres: 3
  • Caractéristiques supplémentaires: Ce modèle peut être facilement modifié avec un appartement indépendant au sous-sol

Aperçu du projet

  • Prix de départ: 590,000 $
  • Taille du garage: 19'3" x 22'8"
  • Superficie totale en pieds carrés: 1572 pi2
  • Salles de bains: 2
  • Chambres: 3

Infolettre

Inscrivez-vous dès maintenant pour recevoir les dernières mises à jour sur les nouvelles maisons, les projets à venir, les offres spéciales et plus encore !

En soumettant votre courriel, vous donnez votre consentement explicite pour recevoir des communications de G&E Construction. Vous pouvez vous désabonner à tout moment.