OPAL ECONO
Aperçu du projet
- Prix de départ: $490,000
- Dimensions du rez de chaussé: 667 pi2
- Dimensions à l’étage: 883 pi2
- Taille du garage: 10’5”x 19'1”
- Superficie totale en pieds carrés: 1550 pi2
- Salles de bains: 2 + 1
- Chambres: 3
- Caractéristiques supplémentaires: De style champêtre moderne avec aire ouverte et finitions de haute qualité.
Aperçu du projet
Les maisons de ville Opal présentent une façade épurée et symétrique avec des pignons à forte pente, un revêtement vertical et des lucarnes en option, conférant à la maison un style de ferme moderne et une présence architecturale audacieuse. Parmi les principales caractéristiques, citons des fenêtres à cadre noir pour le contraste, des garages individuels intégrés avec des panneaux minimalistes et des vérandas couvertes avec des touches de bois. L'uniformité des unités assure une cohésion visuelle, ce qui les rend idéales pour les développements suburbains alliant style, efficacité et vie communautaire. Disponibles dans des palettes de couleurs claires et foncées contrastantes.
Le prix de départ est basé sur un terrain standard ; le prix peut varier si la propriété est située sur un terrain de premier choix. Toutes les spécifications de construction standard sont incluses dans le prix de base.
► Le prix de départ tiennent compte du nouveau remboursement de la HST, en vigueur à compter du 1er avril 2026. Sous réserve d'éligibilité de l'acheteur.
Spécifications de construction standard
Finition Extérieure
-
Pierre à l'avant selon le plan
-
Revêtement de vinyle (côté, arrière)
-
Revêtement de façade en PVC
-
Gouttières
-
Fenêtres noires (face avant)
-
Fenêtres blanches (côté, arrière, sous-sol)
-
Porte de garage noire Garaga Urbaine R16 (sans insertion de fenêtre)
-
Terrasse de 3' x 7' avec porte-fenêtre arrière
-
Bardeaux Mystique BP. Garantie à vie limitée
-
Allée asphaltée (dans les 18 mois suivant la signature)
-
Gazonnage à l'avant et à l'arrière (dans les 18 mois suivant la signature)
-
Un arbre à l'avant (dans les 18 mois suivant la signature)
Finition du Garage
-
Plancher de garage en béton poli
-
Isolation complète
-
Plaques de plâtre et ruban adhésif
Plomberie
-
Douche en acrylique monobloc avec tringle à rideau (dans la salle de bain attenante)
-
Baignoire-douche monobloc en acrylique (dans la salle de bain principale)
-
Toilettes : hauteur confortable
-
Finition chromée dans la cuisine et les salles de bain
-
Lavabo sur colonne dans la salle de bain
Électricité
-
Électricité 100 ampères Panneau
-
Prises, interrupteurs et luminaires standards conformes au code du bâtiment
-
Luminaires fournis par San Remo (qualité du constructeur)
CVC
-
Fournaise mono-étage à haute efficacité (location)
-
Chauffe-eau sans réservoir (location)
-
VRC (ventilation-récupération de chaleur; location)
- Unité de climatisation (location)
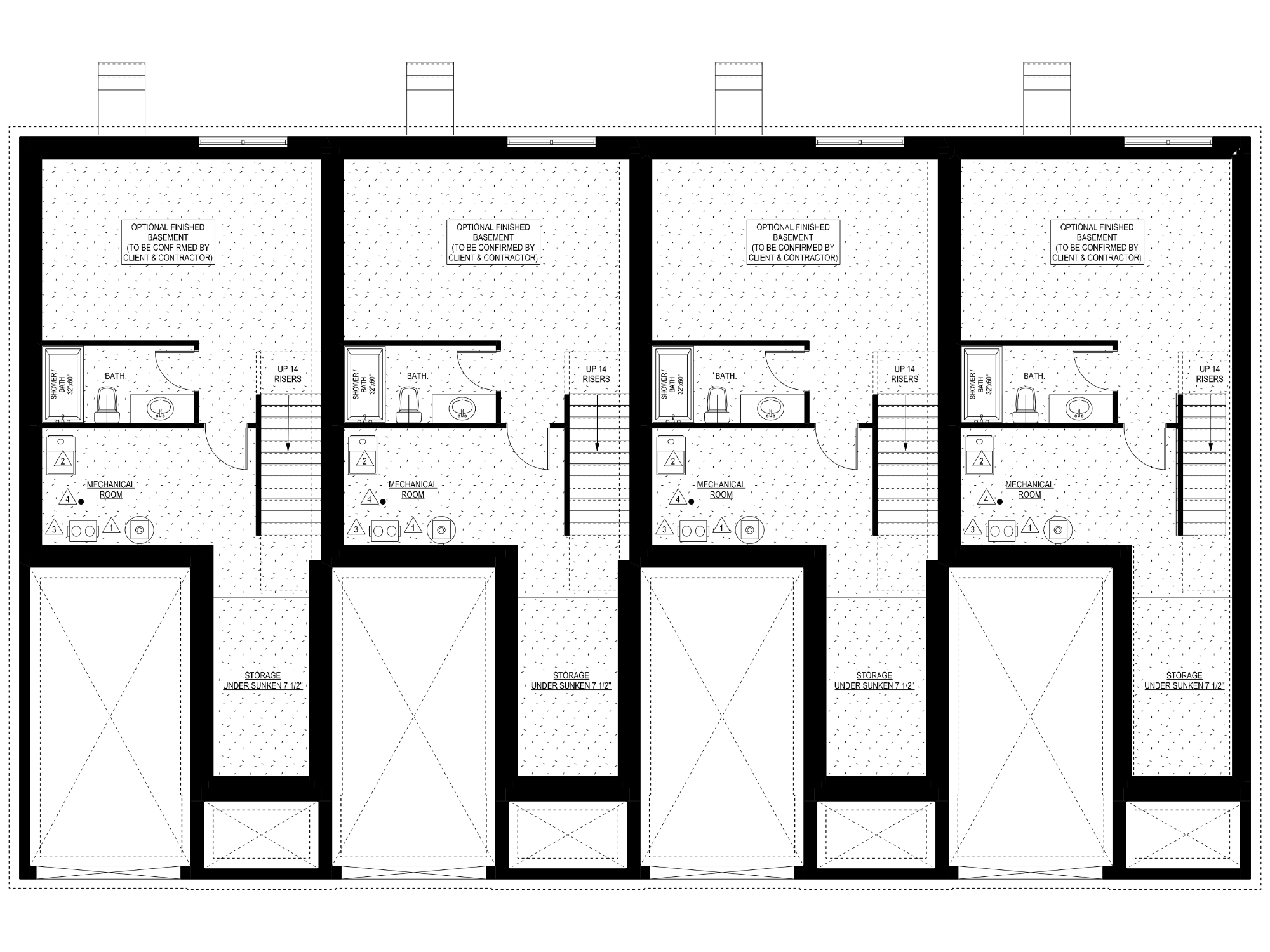
Sous-Sol
-
Plafond de 7'10"
-
Isolation en nappe
Finition Intérieure
-
Plafonds de 8 pieds aux étages principal et deuxième
-
Armoires de cuisine (selon le plan) : portes en PVC de style Shaker, finis jusqu'au plafond, comptoirs en stratifié avec lavabo encastré
-
Armoires de salle de bain (selon le plan ; sauf salle d'eau) : portes en PVC style Shaker, comptoirs en stratifié et lavabo
-
Cadre plat de 2.5" et plinthe plate de 4"
-
Revêtement de sol en vinyle Twelve Oaks dans l'entrée principale, la cuisine, la salle à manger, le salon, les salles de bain et la buanderie
-
Plancher en tapis dans les chambres et le couloir de l’étage
-
Escalier recouvert de moquette (du rez-de-chaussée au premier étage)
-
Rambarde murale en chêne sur l'escalier (du rez-de-chaussée au premier étage)
- Un mur de 42" au deuxième étage, au-dessus de l'escalier
-
Escalier en contreplaqué avec rampe en pin (du rez-de-chaussée au sous-sol)
- Une tablette et une tringle dans tous les garde-robes (sauf le garde-manger de la cuisine)
Options de mise à niveau
Ajouts du foyer
-
Foyer au gaz continental de 36" avec contour en carreaux de 6" et cloison sèche
-
Manteau de foyer, même matériau et couleur que les armoires de cuisine, poutre droite de 6" x 8" x 4'
-
Pierre du plancher au plafond
Ajouts de la cuisine de luxe
-
Dosseret (carrelage métro seulement)
-
Comptoir en quartz
-
Évier encastré
-
revêtement de sol en céramique (cuisine et garde-manger)
Amélioration - salle d'eau
-
Meuble-lavabo avec comptoir en laminé et lavabo posé dessus
-
Comptoir en quartz
-
Évier sous plan
-
Plancher en céramique
Ajouts à la salle de bain attenante
-
Base de douche en acrylique avec mur de céramique et tablette de 4' x 5"
-
Porte de douche en verre
-
Comptoir en quartz
-
Évier sous plan
-
Plancher en céramique
Ajouts à la salle de bain principale
-
Bain-douche en acrylique avec mur de céramique
-
Comptoir en quartz
-
Évier sous plan
-
Plancher en céramique
Ajouts à la buanderie
-
Armoires supérieures
-
Plancher de céramique
Ajouts additionnels
-
Plafond de 9 pieds au rez-de-chaussée
-
Plancher de céramique dans l'entrée
-
Plancher de vinyle au deuxième étage (chambres et corridor)
- Escalier en bois franc assorti au revêtement de sol en vinyle
-
Planchers de bois franc au rez-de-chaussée (salon, salle à manger, cuisine)
-
Plancher de bois franc au deuxième étage (chambres, corridor)
-
Robinet de cuisine noir
-
Luminaires encastrés (par luminaire)
-
Panneau de 200 ampères
-
Climatiseur
-
Terrasse couverte de 8' x 8'
Terrasse non couverture de 8' x 8' -
Conduites de gaz (par raccordement) :
- Barbecue
- Sécheuse
- Cuisinière
- Autre -
Chauffe-eau sans réservoir (achat)
-
Raccordement d’eau pour réfrigérateur
-
Prise de recharge pour véhicule électrique dans le garage
-
Forfait ouvre-porte de garage (comprend 1 ouvre-porte de garage et 2 télécommandes)
-
Préinstallation pour salle de bain 3 pièces au sous-sol
-
Salle de bain finie au sous-sol comprenant un meuble-lavabo de 40" en mélamine blanche avec portes (sans tiroirs), une toilette, une douche monopièce en acrylique de 36" avec tringle à rideau et plancher en vinyle
-
Sous-sol fini (selon le plan) comprenant une salle de loisirs, 6 luminaires encastrés, plancher en vinyle et escalier en tapis
Offre combinée
Profitez de nos forfaits pour économiser encore plus sur votre maison!
Forfait Foyer
- Comprend un foyer Continental, un manteau de foyer et un parement de pierre du plancher au plafond
Forfait Cuisine de luxe
- Comprend un comptoir en quartz, un évier sous plan, un dosseret et un plancher en céramique
Forfait Salle de bain attenante
- Comprend une base de douche en acrylique avec mur de céramique, une porte de douche en verre, un comptoir en quartz, un évier sous plan et un plancher en céramique
Forfait Salle de bain principale
- Comprend un bain/douche en acrylique avec mur de céramique, un comptoir en quartz, un évier sous plan et un plancher en céramique
Coordonnées
Pour plus d’information ou pour planifier une visite, prière de nous contacter :
Téléphone : 613-913-7634
Courriel : philippe@gerenoconstruction.com
Options de financement
Nous offrons une gamme complète d'options de financement concurrentielles, chacune adaptée à vos objectifs et à vos besoins financiers. Nos solutions sont conçues pour offrir flexibilité, transparence et valeur à long terme.
Aperçu du projet
- Prix de départ: 444,059 $
- Dimensions du rez de chaussé: 667 pi2
- Dimensions à l’étage: 883 pi2
- Taille du garage: 10’5”x 19'1”
- Superficie totale en pieds carrés: 1550 pi2
- Salles de bains: 2 + 1
- Chambres: 3
- Caractéristiques supplémentaires: De style champêtre moderne avec aire ouverte et finitions de haute qualité.
Infolettre
Inscrivez-vous dès maintenant pour recevoir les dernières mises à jour sur les nouvelles maisons, les projets à venir, les offres spéciales et plus encore !
En soumettant votre courriel, vous donnez votre consentement explicite pour recevoir des communications de G&E Construction. Vous pouvez vous désabonner à tout moment.