VENETO II

64 rue Helen Crysler

Aperçu du projet

PRÊT À EMMÉNAGER!

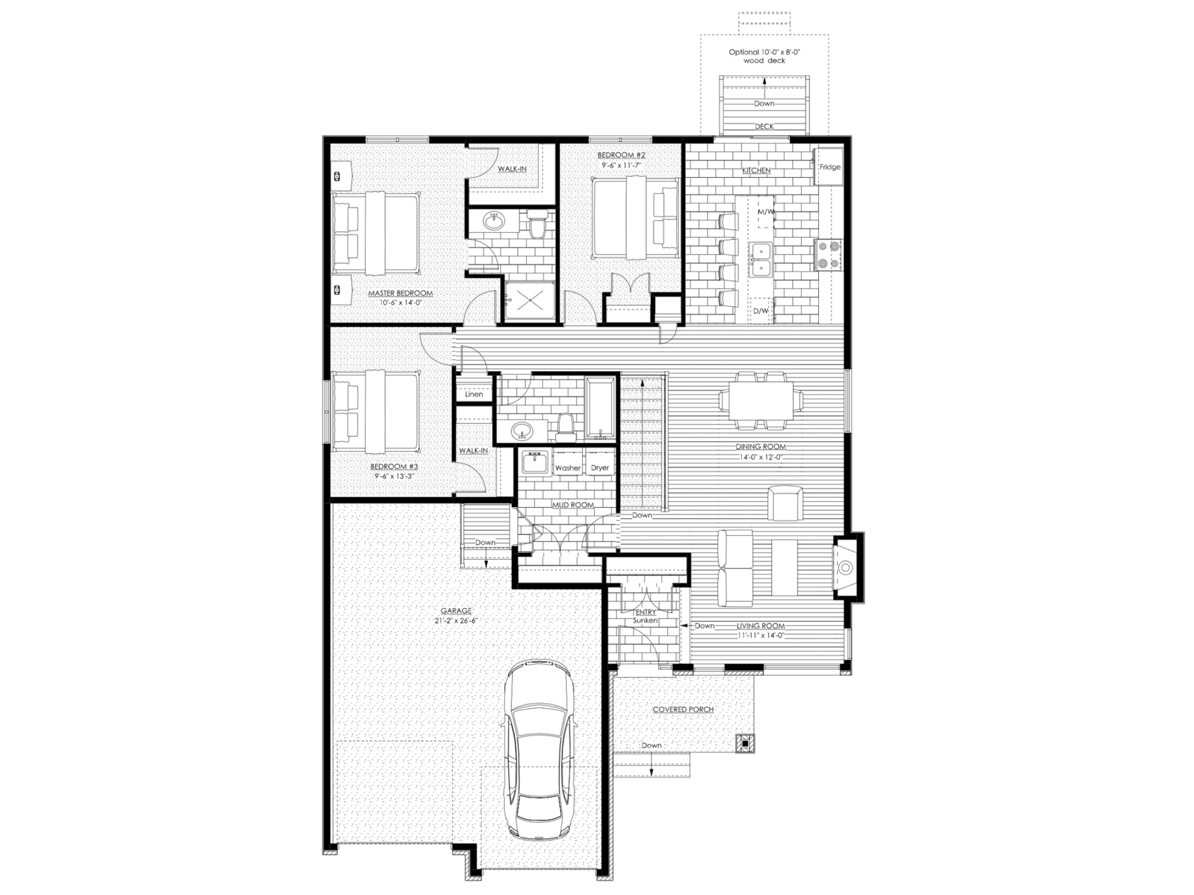
Ce bungalow magnifiquement conçu propose un aménagement à aire ouverte des plus accueillants, avec trois chambres spacieuses et deux salles de bains complètes. La cuisine, soigneusement planifiée, comprend un îlot central avec coin-repas, idéal pour les repas décontractés ou pour recevoir, tout en offrant un vaste espace de rangement et de préparation.

La chambre principale dispose d’un walk-in et d’une salle de bains attenante, créant un espace intime et confortable. Un vestiaire pratique ainsi qu’une salle de lavage au rez-de-chaussée ajoutent à la fonctionnalité du quotidien. Le sous-sol non aménagé offre une toile vierge pour une personnalisation future, que ce soit pour une salle familiale, un gym à domicile ou un espace de vie supplémentaire. Dotée d’un garage double avec accès intérieur, cette propriété allie parfaitement fonctionnalité et confort de vie.

► Le prix de départ tient compte du nouveau remboursement de la TVH (HST), en vigueur à compter du 1er avril 2026. Sous réserve de l'admissibilité de l'acheteur.

Spécifications de construction standard

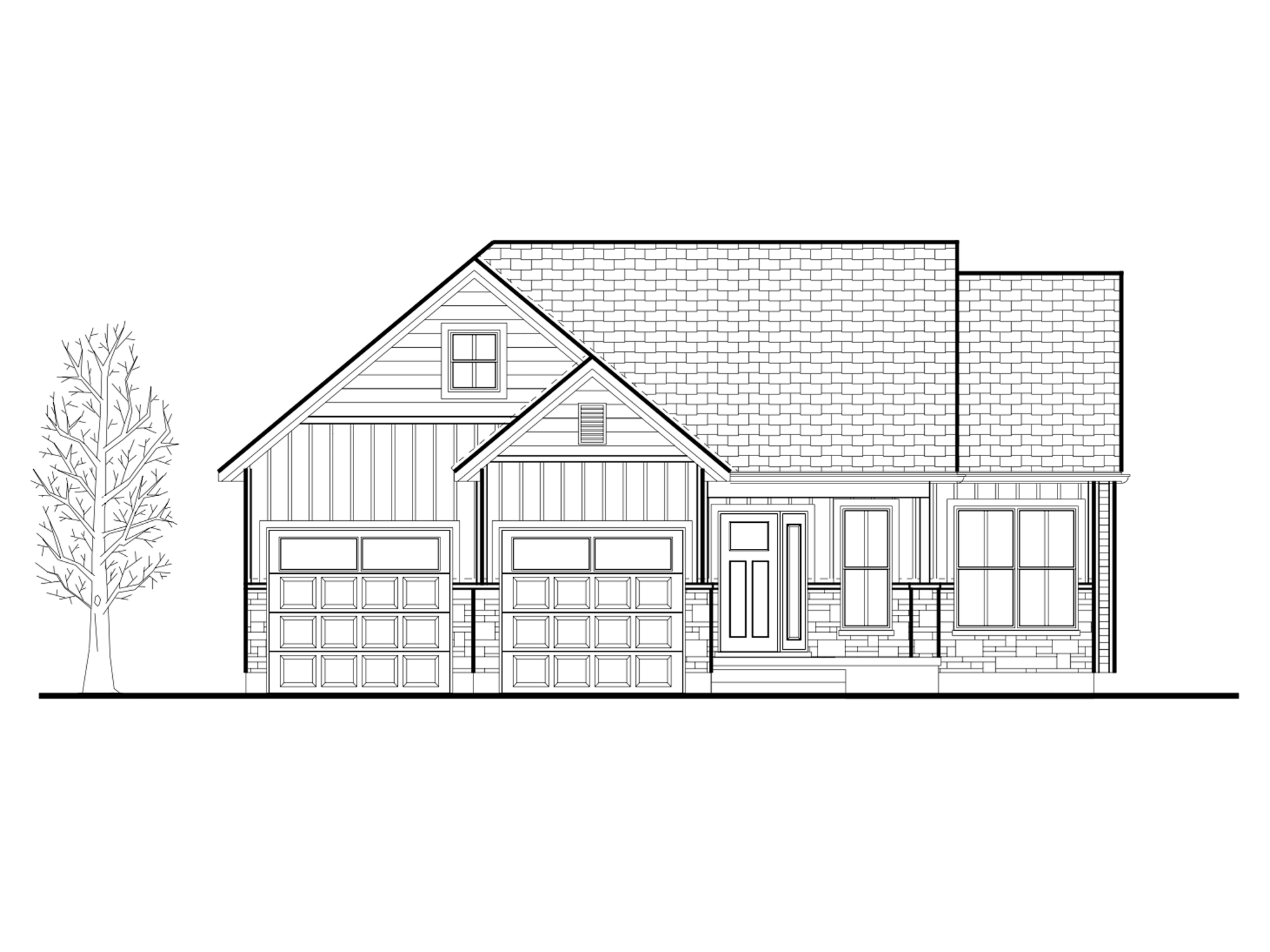
Finitions extérieures
  • Pierre à l’avant, selon le plan

  • Revêtement en vinyle (côtés et arrière)

  • Revêtement avant en fibrociment LP

  • Gouttières

  • Fenêtres noires à la façade

  • Fenêtres blanches (côtés, arrière et sous-sol)

  • Porte de garage Garaga Urbaine R16 noire (sans insert de vitre)

  • Terrasse arrière de 3' x 7' adjacente à la porte-patio

  • Bardeaux BP Mystique avec garantie à vie limitée

  • Allée asphaltée (dans les 18 mois suivant la possession)

  • Gazon à l’avant et à l’arrière (dans les 18 mois suivant la possession)

  • Un arbre à l’avant (dans les 18 mois suivant la possession)


Finitions du garage
  • Dalle de béton polie

  • Isolation complète

  • Gypse avec première couche de ruban à joints


Plomberie
  • Douche monopièce en acrylique avec tringle à rideau (salle de bain attenante)

  • Bain/douche monopièce en acrylique (salle de bain principale)

  • Toilettes hauteur confort

  • Robinetterie chromée dans la cuisine et les salles de bain


Électricité
  • Panneau électrique de 100 ampères

  • Prises, interrupteurs et luminaires standards selon le code du bâtiment

  • Luminaires fournis par San Remo (qualité entrepreneur)


CVC
  • Fournaise à haut rendement à un seul étage

  • Chauffe-eau sans réservoir (location)

  • VRC (ventilation à récupération de chaleur)


Sous-sol
  • Hauteur sous plafond de 7' 10"

  • Isolation murale avec couverture isolante


Finitions intérieures
  • Plafonds de 8 pieds partout

  • Armoires de cuisine (selon le plan) avec portes style shaker en PVC, finies jusqu’au plafond, comptoirs laminés et évier encastré

  • Armoires de salle de bain (selon le plan; sauf salle d’eau) avec portes style shaker en PVC, comptoirs laminés et lavabo de comptoir

  • Moulures droites de 2 ½" et plinthes droites de 4"

  • Plancher en vinyle ou tuiles Twelve Oaks à l’entrée, cuisine, buanderie, salle à manger, salon, salles de bain et couloir

  • Planchers de tapis dans les chambres

  • Escalier en chêne teinté pour s’agencer au plancher en vinyle (du rez-de-chaussée au sous-sol)

  • Rampe en chêne avec barreaux métalliques (du rez-de-chausséeau sous-sol)

  • Une étagère et une tringle dans tous les placards

Options incluses

Améliorations de la cheminée
  • Foyer au gaz Continental de 91 cm (36 po) avec entourage en carreaux de 15 cm (6 po) et cloisons sèches
  • Manteau de foyer, même matériau et couleur que les armoires de cuisine, poutre droite de 15 cm x 20 cm x 1,2 m (6 po x 8 po x 4 pi)
  • Revêtement en pierre du sol au plafond
 
Améliorations de la cuisine luxueuse
  • Comptoir en quartz
  • Évier encastré
 
Améliorations de la salle de lavage
  • Armoires supérieures
  • Baignoire à laver
 
Améliorations additionnelles
  • Porte d'entrée latérale donnant sur le sous-sol
  • Préparation pour une salle de bain de 3 pièces au sous-sol
  • Porte latérale additionnelle
  • Sous-sol cloisonné en gypse


27,600 $ EN AMÉLIORATIONS!

Personnalisation et ajouts disponibles

Dernière chance de rénover et de vous approprier cette maison!

 

Améliorations de la cuisine de luxe
  • Crédence : 1,800 $
  • Robinet de cuisine noir : 200 $
 
Améliorations de la salle de bain attenante
  • Porte de douche en verre : 1,500 $
  • Comptoirs en quartz avec lavabo encastré : 1,050 $
  • Robinet de lavabo noir : 120 $
  • Robinet de douche noir : 400 $
 
Améliorations de la salle de bain principale
  • Porte de douche en verre : 1,500 $
  • Comptoirs en quartz avec lavabo encastré : 850 $
  • Robinet de lavabo noir : 120 $
  • Robinet de douche noir : 400 $
 
Améliorations additionnelles
  • Climatisation : 5,300 $
  • Conduites de gaz (par raccordement) : 600 $
  • Ensemble ouvre-porte de garage (comprend 1 ouvre-porte et 2 télécommandes) : 920 $
  • Prise pour véhicule électrique dans le garage : 600 $
  • Chauffe-eau instantané (propriété du vendeur) : 3,800 $
  • Terrasse extérieure de 2,4 m x 3 m : 4,000 $
  • Terrasse couverte de 8 pi x 10 pi - 12,000 $
  • Salle de bain aménagée au sous-sol : meuble-lavabo de 40 po en mélamine blanche avec portes (sans tiroirs), toilettes, douche monobloc en acrylique de 36 po avec tringle à rideau et revêtement de sol en vinyle - 5,500 $
  • Sous-sol aménagé (salle de bain séparée) : salle familiale, 6 spots encastrés et tapis - 23,000 $
  • Appartement intergénérationnel au sous-sol - 100,000 $

Coordonnées

Pour plus d’information ou pour planifier une visite, prière de nous contacter :
Téléphone : 613-913-7634
Courriel : info@gnehomes.com 

Options de financement

Nous proposons des options de financement compétitives adaptées à vos besoins. Contactez-nous pour en savoir plus sur les termes et conditions.

Détails

  • Modèle: VENETO II
  • Type de modèle: Bungalows
  • Adresse civique: 64 rue Helen Crysler
  • Communauté: Countryside Acres
  • Lot: 15

Aperçu du projet

  • Prix de départ: 583,186 $
  • Taille du garage: 21'2" x 26'6"
  • Superficie totale en pieds carrés: 1467 pieds carrés
  • Superficie du lot incluse: 49' x 109'
  • Salles de bains: 2
  • Chambres: 3
  • Caractéristiques supplémentaires: 27,600 $ en améliorations

Infolettre

Inscrivez-vous dès maintenant pour recevoir les dernières mises à jour sur les nouvelles maisons, les projets à venir, les offres spéciales et plus encore !

En soumettant votre courriel, vous donnez votre consentement explicite pour recevoir des communications de G&E Construction. Vous pouvez vous désabonner à tout moment.