BORDEAUX III (Étendre)

83 Villeneuve Moose Creek

Aperçu du projet

PRÊT À EMMÉNAGER!

Bienvenue chez vous ! Cette maison jumelée de deux étages allie le charme intemporel d'une ferme à un design moderne. Offrant 164 m² d'espace habitable aménagé avec soin, elle comprend 3 chambres spacieuses, 3 salles de bain et un immense garage double – idéal pour vos véhicules, le rangement et tout ce dont vous avez besoin pour votre vie à la campagne.

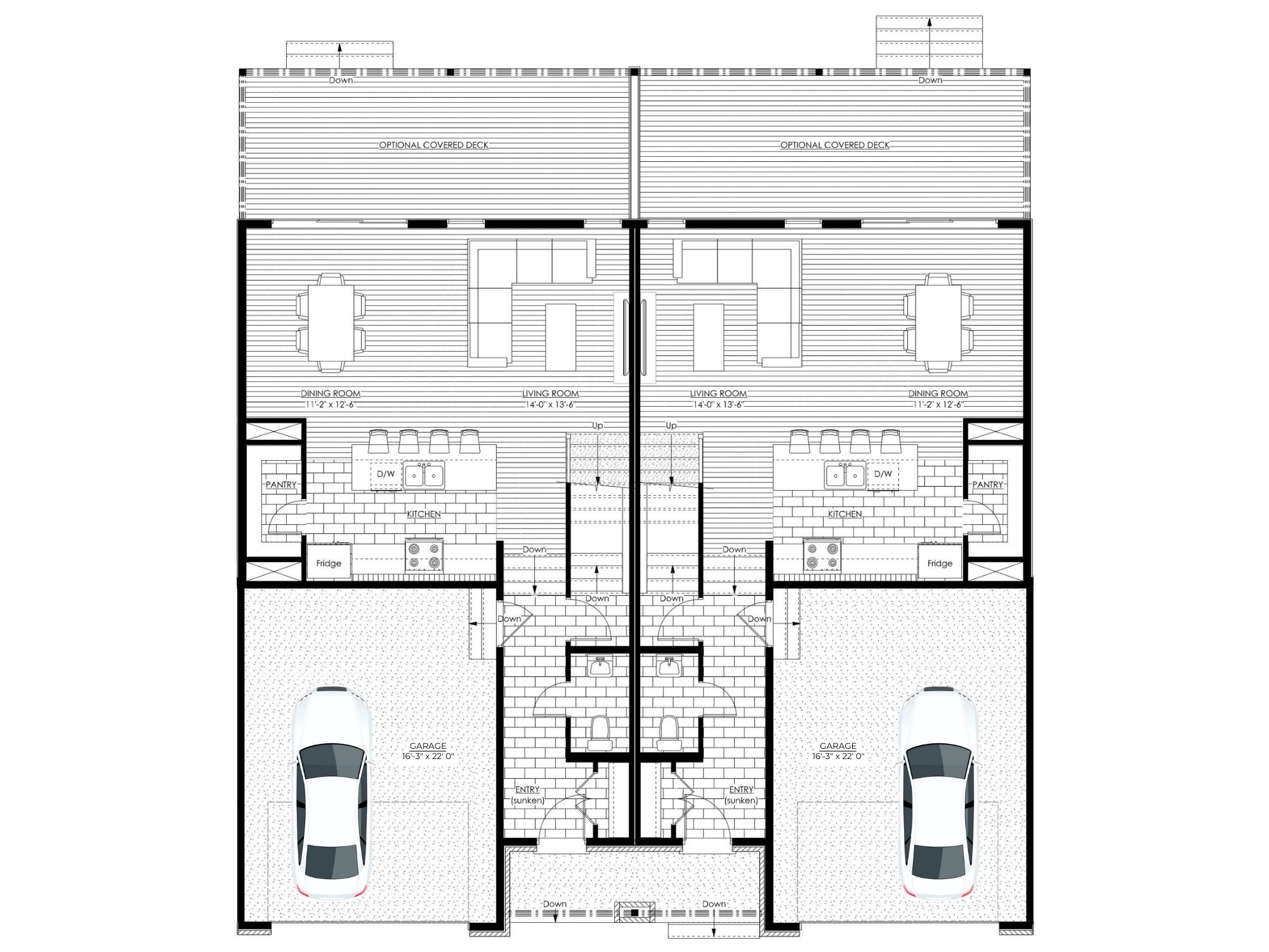
Le rez-de-chaussée offre un concept à aire ouverte, parfait pour recevoir et pour la vie quotidienne. La magnifique cuisine est dotée d'un îlot de 2,7 m avec comptoir-lunch, de nombreux rangements et d'un garde-manger, alliant fonctionnalité et style. Un revêtement de sol en vinyle de luxe s'étend dans l'entrée, le salon, la salle à manger, la cuisine, la salle de bain et le corridor, tandis qu'un tapis moelleux apporte du confort aux chambres à l'étage.

À l'étage, la suite principale comprend un grand walk-in et une salle de bain attenante avec douche. Les autres chambres sont spacieuses, chacune avec beaucoup de rangement, et sont complétées par une salle de bain principale complète et une buanderie pratique.

À l'arrière de la maison, une vaste véranda couverte, s'étendant sur toute la largeur de la façade, offre un espace de vie supplémentaire exceptionnel, idéal pour les longues soirées d'été, les repas en plein air ou pour se détendre avec un livre lors des après-midi pluvieux.

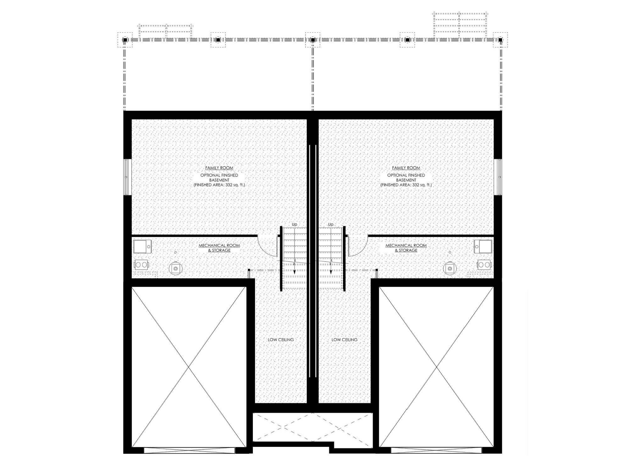
Le sous-sol non aménagé offre un potentiel immense pour créer un espace de vie supplémentaire adapté à vos besoins.

Découvrez l'alliance parfaite entre confort moderne et charme champêtre dans cette maison magnifiquement conçue, où qualité, confort et style se marient harmonieusement.

Spécifications de construction standard

Finitions extérieures
  • Pierre à l’avant, selon le plan

  • Revêtement en vinyle (côtés et arrière)

  • Revêtement avant en fibrociment LP

  • Gouttières

  • Fenêtres noires à la façade

  • Fenêtres blanches (côtés, arrière et sous-sol)

  • Porte de garage Garaga Urbaine R16 noire (sans insert de vitre)

  • Terrasse arrière de 3' x 7' adjacente à la porte-patio

  • Bardeaux BP Mystique avec garantie à vie limitée

  • Allée asphaltée (dans les 18 mois suivant la possession)

  • Gazon à l’avant et à l’arrière (dans les 18 mois suivant la possession)

  • Un arbre à l’avant (dans les 18 mois suivant la possession)


Finitions du garage
  • Dalle de béton polie

  • Isolation complète

  • Gypse avec première couche de ruban à joints


Plomberie
  • Baignoire autoportante (salle de bain attenante)
  • Douchemonopièce en acrylique avec tringle à rideau (salle de bain attenante)

  • Bain/douche monopièce en acrylique (salle de bain principale)

  • Toilettes hauteur confort

  • Robinetterie chromée dans la cuisine et les salles de bain

  • Lavabo sur pied dans la salle d’eau


Électricité
  • Panneau électrique de 100 ampères

  • Prises, interrupteurs et luminaires standards selon le code du bâtiment

  • Luminaires fournis par San Remo (qualité entrepreneur)


CVC
  • Fournaise à haut rendement à un seul étage

  • Chauffe-eau sans réservoir (location)

  • VRC (ventilation à récupération de chaleur)


Sous-sol
  • Hauteur sous plafond de 7' 10"

  • Isolation murale avec couverture isolante


Finitions intérieures
  • Plafond de 8 pi à l’étage et rez-de-chaussée

  • Armoires de cuisine (selon le plan) avec portes style shaker en PVC, finies jusqu’au plafond, comptoirs laminés et évier encastré

  • Armoires de salle de bain (selon le plan; sauf salle d’eau) avec portes style shaker en PVC, comptoirs laminés et lavabo de comptoir

  • Moulures droites de 2 ½" et plinthes droites de 4"

  • Plancher en vinyle ou tuiles Twelve Oaks à l’entrée, cuisine, salle à manger, salon, salles de bain et buanderie

  • Plancher en tapis dans les chambres et le couloir de l’étage

  • Escalier en chêne teinté pour s’agencer au plancher en vinyle (du rez-de-chaussée à l’étage)

  • Rampe en chêne avec barreaux métalliques (du rez-de-chaussée à l’étage)

  • Escalier en contreplaqué avec tapis et main courante en bois franc (du rez-de-chaussée au sous-sol)

  • Une tablette et une tringle dans tous les garde-robes (sauf garde-manger de la cuisine)

Options incluses

Améliorations de luxe pour la cuisine
  • Comptoir en quartz
  • Évier encastré
  • Hotte de cuisine incluse
 
Améliorations additionnelles
  • Véranda arrière couverte de 25' 8" x 8' 0"
  • Climatisation
  • Gouttière

 

35,200 $ EN AMÉLIORATIONS!

Personnalisation et ajouts disponibles

Dernière chance de rénover et de vous approprier cette maison!

 

Améliorations de la cuisine de luxe
  • Crédence : 1,600 $
  • Robinet de cuisine noir : 200 $
 
Améliorations de la salle de bain
  • Comptoirs en quartz avec lavabo encastré - 1 750 $
 
Améliorations de la salle de bain attenante
  • Porte de douche en verre : 1,500 $
  • Comptoirs en quartz avec lavabo encastré : 1,150 $
  • Robinet de lavabo noir : 150 $
  • Robinet de douche noir : 150 $
 
Améliorations de la salle de bain principale
  • Comptoirs en quartz avec lavabo encastré : 1,550 $
 
Améliorations additionnelles
  • Conduites de gaz (par raccordement) : 600 $
  • Ensemble ouvre-porte de garage (comprend 1 ouvre-porte et 2 télécommandes) : 920 $
  • Prise pour véhicule électrique dans le garage : 600 $
  • Chauffe-eau instantané (propriété du vendeur) : 3,800 $
  • Sous-sol aménagé (salle de bain séparée) : salle familiale, 6 spots encastrés et tapis - 23,000 $

Coordonnées

Pour plus d’information ou pour planifier une visite, prière de nous contacter :
Téléphone : 613-913-7634
Courriel : info@gnehomes.com 

Options de financement

Nous proposons des options de financement compétitives adaptées à vos besoins. Contactez-nous pour en savoir plus sur les termes et conditions.

Détails

  • Modèle: BORDEAUX III (Étendre)
  • Type de modèle: Semi-détachées à deux étages
  • Adresse civique: 83 Villeneuve Moose Creek
  • Communauté: Creekside Estates
  • Lot: 14

Aperçu du projet

  • Prix de départ: 526,999 $
  • Dimensions du rez de chaussé: 781 pieds carrés
  • Dimensions à l’étage: 980 pieds carrés
  • Taille du garage: 19'3" x 22'0"
  • Superficie totale en pieds carrés: 1761 pieds carrés
  • Salles de bains: 2 + 1
  • Chambres: 3
  • Caractéristiques supplémentaires: 35,200 $ en améliorations

Infolettre

Inscrivez-vous dès maintenant pour recevoir les dernières mises à jour sur les nouvelles maisons, les projets à venir, les offres spéciales et plus encore !

En soumettant votre courriel, vous donnez votre consentement explicite pour recevoir des communications de G&E Construction. Vous pouvez vous désabonner à tout moment.